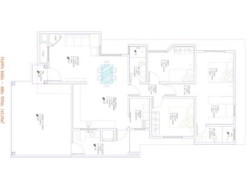
Casa à Venda com 2 dormitórios, sendo 1 suíte, 142,23 m²
Rua Judite Antunes AlberttiSão Cristóvão, Guarapuava - PR

Informações
- Perfil: Novo
Medidas
- Área Total: 142,23 m²
- Terreno Área Total: 225 m²
- Terreno Frente: 10 m
- Terreno Fundo: 10 m
- Terreno Esquerda: 22,50 m
- Terreno Direita: 22,50 m
Descrição
Casa Nova de Alto Padrão à Venda no Residencial Alto de Santa Maria | Guarapuava-PR
A Consoli Imóveis apresenta uma excelente oportunidade para você que busca conforto, modernidade e qualidade construtiva em uma localização privilegiada.
Residencial Alto de Santa Maria
Rua Judite Antunes Albertti, 307 - São Cristóvão - Guarapuava-PR
Dados do Imóvel
Área construída: 142,23 m²
Área do terreno: 225 m² (10 x 22,5)
Casa nova - em construção
Previsão de entrega: Julho/2026
Financiável
Ambientes planejados para seu conforto
Sala de estar com lareira
Sala de jantar integrada
Cozinha funcional
Lavanderia fechada
01 Suíte com closet
02 Quartos
Banheiro social
Área gourmet com churrasqueira coberta
Garagem para 2 veículos lado a lado
Corredor lateral e espaço livre nos fundos
Diferenciais de Alto Padrão
Porcelanato nas áreas sociais
Piso laminado nos dormitórios
Gesso rebaixado
Metais Docol monocomando
Jardim frontal com grama plantada
Textura projetada externa e muros
Tubulação para aquecimento a gás ou solar
Infraestrutura elétrica 110V e 220V individual por tomada
Interfone
Portão eletrônico
Fechadura eletrônica no acesso de pedestres
Excelente iluminação natural e ventilação
Valor: R$ 745.000,00
Financiável
Estuda veículos e imóveis como parte de pagamento
Agende sua visita e receba todas as informações
Consoli Imóveis
(42) 99949-3246
